
Palmerston North
240 Broadway Avenue
P O Box 5004
Palmerston North 4414
Phone: 06 356 5122
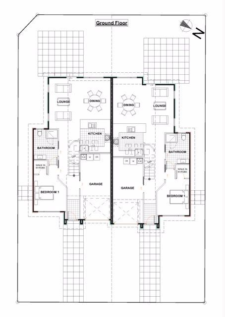
If you can't be bothered with the hassles of building look at this brand new architecturally designed low maintenance townhouse. Situated in the popular hospital location and close to the city centre. This three bedroom, two bathrooms (tiled with quality fittings) townhouse will certainly be the pick of the bunch. Extremely stylish kitchen with stone bench tops and also fitted with Fisher and Paykel appliances (double dishdrawers). The open plan living opens out onto the private outdoor deck area. Single internal access garaging and low maintenance grounds. Buyers $589,000+.
3 bedrooms
2 bathrooms
1 garage
This Property